(55) 5251-1521

Departamento ext 153m2 roof privado balcon 2 rec 2 autos del Valle PreVenta 2027

Del Valle Centro, Benito Juárez, Ciudad de México

  • Departamento
  • 2 recámaras
  • 2 baños
  • 153.5 m² de construcción
  • $8,550,000 MXN En Venta

Descripción

Entrega Diciembre 2027
Apartado $50,000
Enganche al contrato $805,000
23 mensualidades $37,174
Enganche Total $1,710,000

Cifra a pagar en escrituración $6,840,000

Desarrollo con área comercial en la planta baja
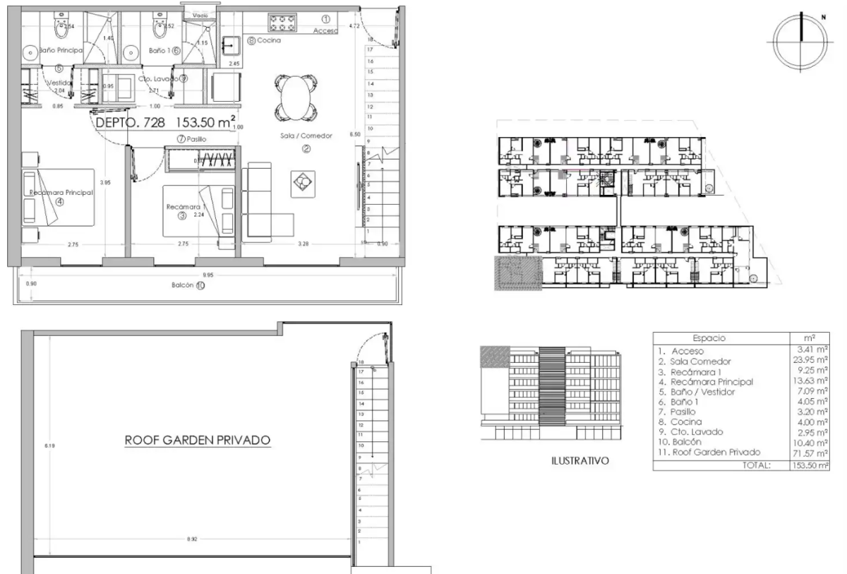
Departamento exterior
2 recamaras
estancia
comedor
2 baños
2 estacionamientos
habitable 71.53m2
Balcon 10.40m2
Roof privado 71.57m2

Amenidades
Area de juegos
Firepit
Terraza
Coworking
Comedor
Area comercial
Carril de nado
Salón jovenes

Cada espacio está diseñado con un enfoque meticuloso en detalles y acabados. Utilizamos materiales de alta gama para asegurar que cada superficie, desde los pisos hasta los techos, refleje lujo y sofisticación. Nuestros acabados no solo son visualmente impresionantes, sino también duraderos y funcionales.

Características

Exterior
  • Cisterna
  • Estacionamiento techado
  • Facilidad para estacionarse
  • Roof garden
  • Terraza
  • Balcón
General
  • Accesibilidad para adultos mayores
  • Accesibilidad para personas con discapacidad
  • Cocina integral
  • Elevador
  • Hidroneumático
  • Seguridad 24 horas
  • Fraccionamiento privado
  • Dos plantas
Políticas
  • Mascotas permitidas
Recreación
  • Alberca
  • Área de juegos infantiles
  • Fogatero
  • Gimnasio

Detalles

ID:EB-UU7504
Tipo:Departamento
Precio de venta: $8,550,000 MXN
Antigüedad:En construcción
Recámaras:2
Baños:2
Medios baños:0
Estacionamientos:2
Construcción:153.5 m²
Piso:7