(55) 5251-1521

Casa en obra gris en venta Col. Ampliación Daniel Garza

Ampliación Daniel Garza, Miguel Hidalgo, Ciudad de México

  • Casa
  • 2 recámaras
  • 2 baños
  • 223 m² de construcción
  • 119 m² de terreno
  • Exterior Disposición
  • $8,500,000 USD En Venta

Descripción

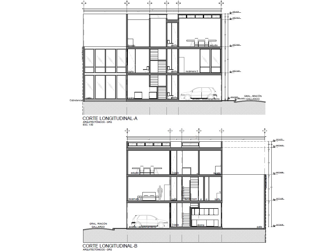
Preciosa casa en obra gris (faltan acabados) en la Col. Ampliación Daniel Garza, a un costado de San Miguel Chapultepec. Proyecto del Arq. Mauricio Rocha (https://www.tallerdearquitectura.com.mx/)

Terreno: 119.30 m2
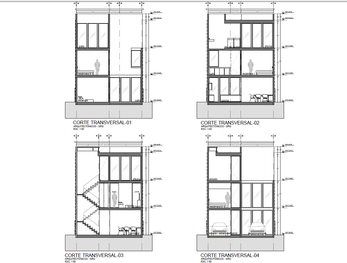
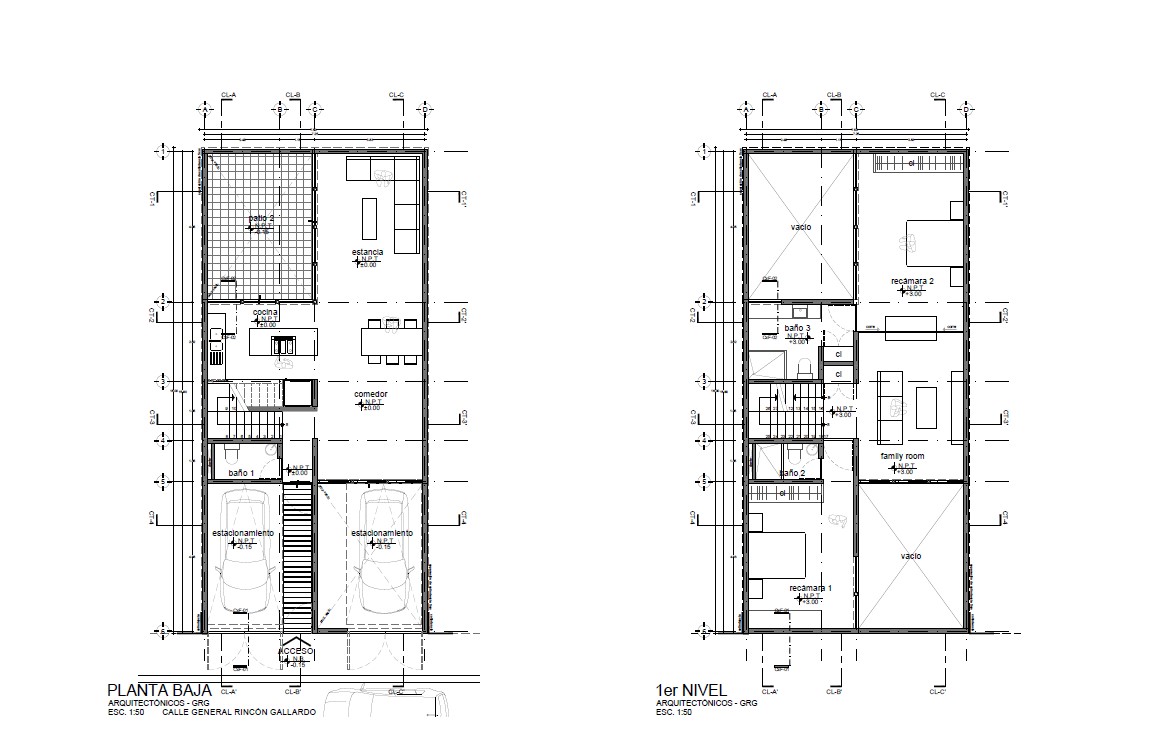
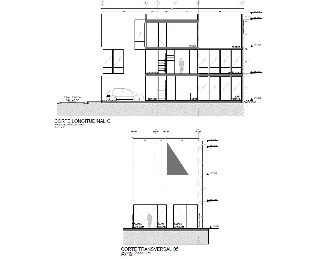
Construcción en 3 niveles: 223.04 m2
Área de exteriores: 59.39 m2

1er nivel:
Área estacionamiento
Sala
Comedor
Cocina ½ baño visitas
Patio o terraza

2do nivel:
Family (cuarto TV)
Recámara principal con baño
Segunda recámara con baño

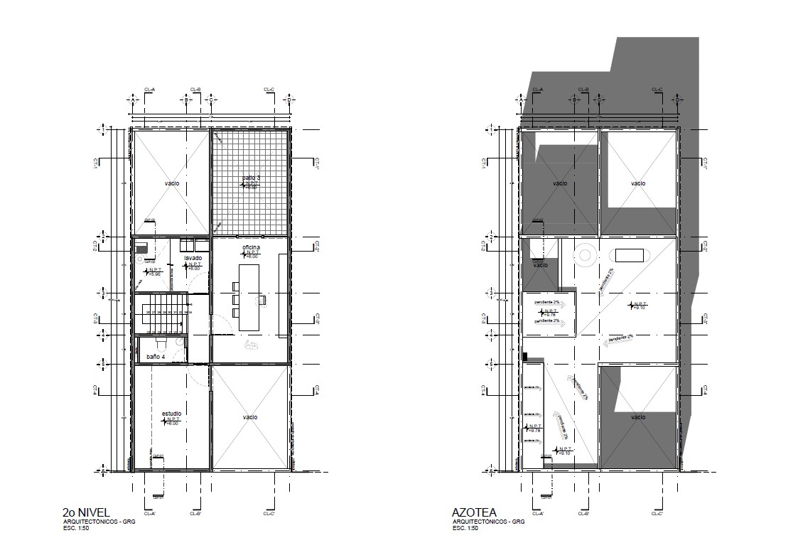
3er nivel:
Oficina o cuarto juegos
Estudio
½ baño
Área lavado

Faltarían aproximadamente $2,000,000 para terminarla.

Ubicación privilegiada y el proyecto es una joya!

Características

Exterior
  • Balcón
  • Cisterna
  • Estacionamiento techado
  • Patio
  • Terraza
General
  • Cocina
  • Estudio
  • Oficina
Políticas
  • Mascotas permitidas

Detalles

ID:EB-VT2928
Tipo:Casa
Precio de venta: $8,500,000 USD
Antigüedad:En construcción
Recámaras:2
Baños:2
Medios baños:2
Estacionamientos:1
Construcción:223 m²
Terreno:119 m²
Pisos:3